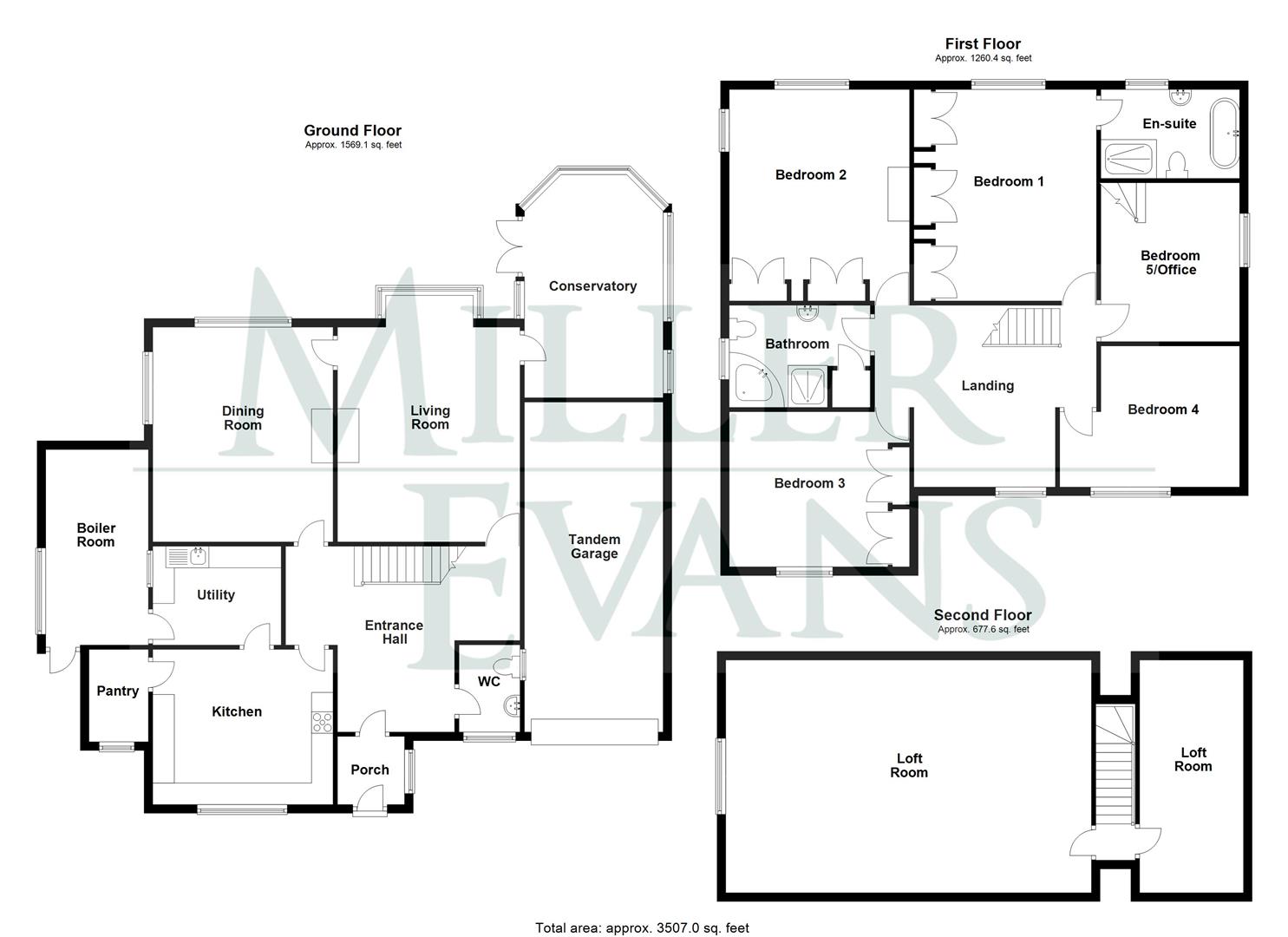
This imposing five bedroom detached family home benefits from spacious family accommodation briefly comprising; entrance porch, entrance hall, cloakroom, dining room, living room, conservatory, kitchen, utility room and boiler room. Master bedroom with en suite bathroom, four further bedrooms and family bathroom. Extensive loft room. Garage and ample parking. Large well maintained gardens.
The property is pleasantly situated in a particularly sought after residential area in Church Stretton, occupying a substantial plot with extensive gardens. Sandford Avenue is a short distance from Church Stretton town centre, where there are a wide range of amenities, including; primary and secondary schools, rail service, doctors and dentists, co-op supermarket, local butcher, Church and a range of cafe's, bars and restaurants.
Read more
This imposing five bedroom detached family home benefits from spacious family accommodation briefly comprising; entrance porch, entrance hall, cloakroom, dining room, living room, conservatory, kitchen, utility room and boiler room. Master bedroom with en suite bathroom, four further bedrooms and family bathroom. Extensive loft room. Garage and ample parking. Large well maintained gardens.
The property is pleasantly situated in a particularly sought after residential area in Church Stretton, occupying a substantial plot with extensive gardens. Sandford Avenue is a short distance from Church Stretton town centre, where there are a wide range of amenities, including; primary and secondary schools, rail service, doctors and dentists, co-op supermarket, local butcher, Church and a range of cafe's, bars and restaurants.
An imposing, spacious, five bedroom detached family home set in well maintained extensive gardens.
Inside The Property -
Entrance Porch -
Spacious Entrance Hall -
Cloakroom - Wash hand basin, wc
Dining Room - 4.98m x 4.19m (16'4" x 13'9") - Two windows
Door to:
Living Room - 4.98m x 4.24m (16'4" x 13'11") - Large bay window
Door to:
Conservatory - French doors to rear garden
Windows enjoying outlooks over the rear garden
Kitchen - 3.60m x 4.19m (11'10" x 13'9") - Range of matching wall and base units
Window to the front
Large walk in PANTRY (7'0" x 4'6") with window
Door to:
Utility - 2.30m x 2.98m (7'7" x 9'9") - Base units with inset sink
Door to:
Boiler Room - Window and door to the side
STAIRCASE rising from entrance hall to FIRST FLOOR LANDING
Master Bedroom - 4.91m x 4.24m (16'1" x 13'11") - Built in wardrobes
Window to the rear
En Suite Bathroom - Panelled bath
Large shower cubicle
Wash hand basin, wc
Window to the rear
Bedroom 2 - 4.91m x 4.19m (16'1" x 13'9") - Built in wardrobes
Window to the rear
Bedroom 3 - 3.60m x 4.19m (11'10" x 13'9") - Built in wardrobes
Window to the front
Bedroom 4 - 3.28m x 4.18m (10'9" x 13'9") - Window to the front
Bedroom 5 / Study - 3.69m x 3.22m (12'1" x 10'7") - Window to the side
Staircase to loft rooms.
Bathroom - Corner bath
Shower cubicle
Wash hand basin, wc
Window
Store cupboard
Staircase from bedroom five provides access to:
Loft Room - 5.40m x 2.41m (17'9" x 7'11") -
Loft Room - 5.40m x 8.49m (17'9" x 27'10") - Window to the side
Providing potential for further accommodation (subject to any necessary planning consents)
Outside The Property -
Tandem Garage -
The property is screened from the road by box hedging and approached over a spacious gravelled driveway providing ample parking and access to the garage, flanked by mature hedging and floral borders.
Gated access to the extensive and well maintained REAR GARDEN mainly laid to lawn with large paved patio area providing ideal seating area, gravelled pathway, wide range of mature shrubs and hedging. Summerhouse. Garden store shed. The garden is enclosed on all sides and enjoys views over the South Shropshire Hills.
Read less