This well presented four bedroom detached family home provides well planned and well proportioned accommodation throughout, briefly comprising; entrance hall, dining room, kitchen/breakfast room, utility, cloakroom, living room, conservatory, study, master bedroom with en suite shower room, three further bedrooms and bathroom. Double garage and parking. Neatly kept rear gardens. The property benefits from oil fired central heating and 10 PV solar panels (owned outright)
The property occupies a beautiful setting in this small cul-de-sac, in the attractive village of Hope Bowdler, which is approximately 1.5 miles from Church Stretton. Church Stretton offers an excellent range of amenities, including primary and secondary schools, rail and bus services, doctors, dentist and Vets, restaurants, co-op supermarket and the surrounding hills provide a wonderful opportunity for recreational pursuits. The nearby town of Shrewsbury, Much Wenlock, Telford and Ludlow are also easily accessible.
Read more
This well presented four bedroom detached family home provides well planned and well proportioned accommodation throughout, briefly comprising; entrance hall, dining room, kitchen/breakfast room, utility, cloakroom, living room, conservatory, study, master bedroom with en suite shower room, three further bedrooms and bathroom. Double garage and parking. Neatly kept rear gardens. The property benefits from oil fired central heating and 10 PV solar panels (owned outright)
The property occupies a beautiful setting in this small cul-de-sac, in the attractive village of Hope Bowdler, which is approximately 1.5 miles from Church Stretton. Church Stretton offers an excellent range of amenities, including primary and secondary schools, rail and bus services, doctors, dentist and Vets, restaurants, co-op supermarket and the surrounding hills provide a wonderful opportunity for recreational pursuits. The nearby town of Shrewsbury, Much Wenlock, Telford and Ludlow are also easily accessible.
A charming well presented, four bedroom detached family home.
Inside The Property -
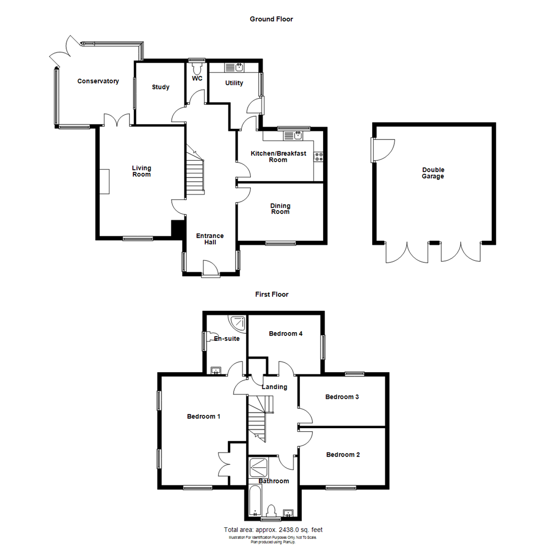
Entrance Hall - Two windows to the side
Two understairs store cupboards
Living Room - 5.62m x 4.35m (18'5" x 14'3") - Feature Inglenook fireplace
Window to the front
French doors to:
Conservatory - Windows enjoying panoramic views of the garden
French doors to the garden
Dining Room - 2.95m x 4.39m (9'8" x 14'5") - Window to the front
Kitchen / Breakfast Room - 2.58m x 4.39m (8'6" x 14'5") - Range of matching wall and base units
Some integrated appliances
Window to the rear
Utility - 3.39m x 2.53m (11'1" x 8'4") - Base units with sink
Rear access door
Study - 3.16m x 2.48m (10'4" x 8'2") -
Separate Wc -
STAIRCASE rising from the entrance hall to FIRST FLOOR LANDING with built in airing cupboard.
Bedroom 1 - 5.59m x 4.35m (18'4" x 14'3") - Two windows to the side
Fitted storage cupboards
Window to the front
En Suite Shower Room - Large shower cubicle
Wash hand basin, wc
Window to the side
Bedroom 2 - 2.94m x 4.39m (9'8" x 14'5") - Window
Bedroom 3 - 2.55m x 4.39m (8'4" x 14'5") - Window
Bedroom 4 - 3.04m x 3.70m (10'0" x 12'2") - Window
Bathroom - Panelled bath
Shower cubicle
Wash hand basin, wc
Window
Outside The Property -
Double Garage -
The property is approached through wooden entrance gates over a spacious driveway providing ample parking and access to the garage. Gravelled front garden with a range of shrub beds and borders.
REAR GARDEN mainly laid to lawn with floral and shrubbery borders, paved patio area and further decked area, mature hedging affording the garden privacy. Greenhouse (8 x 10)
Read less