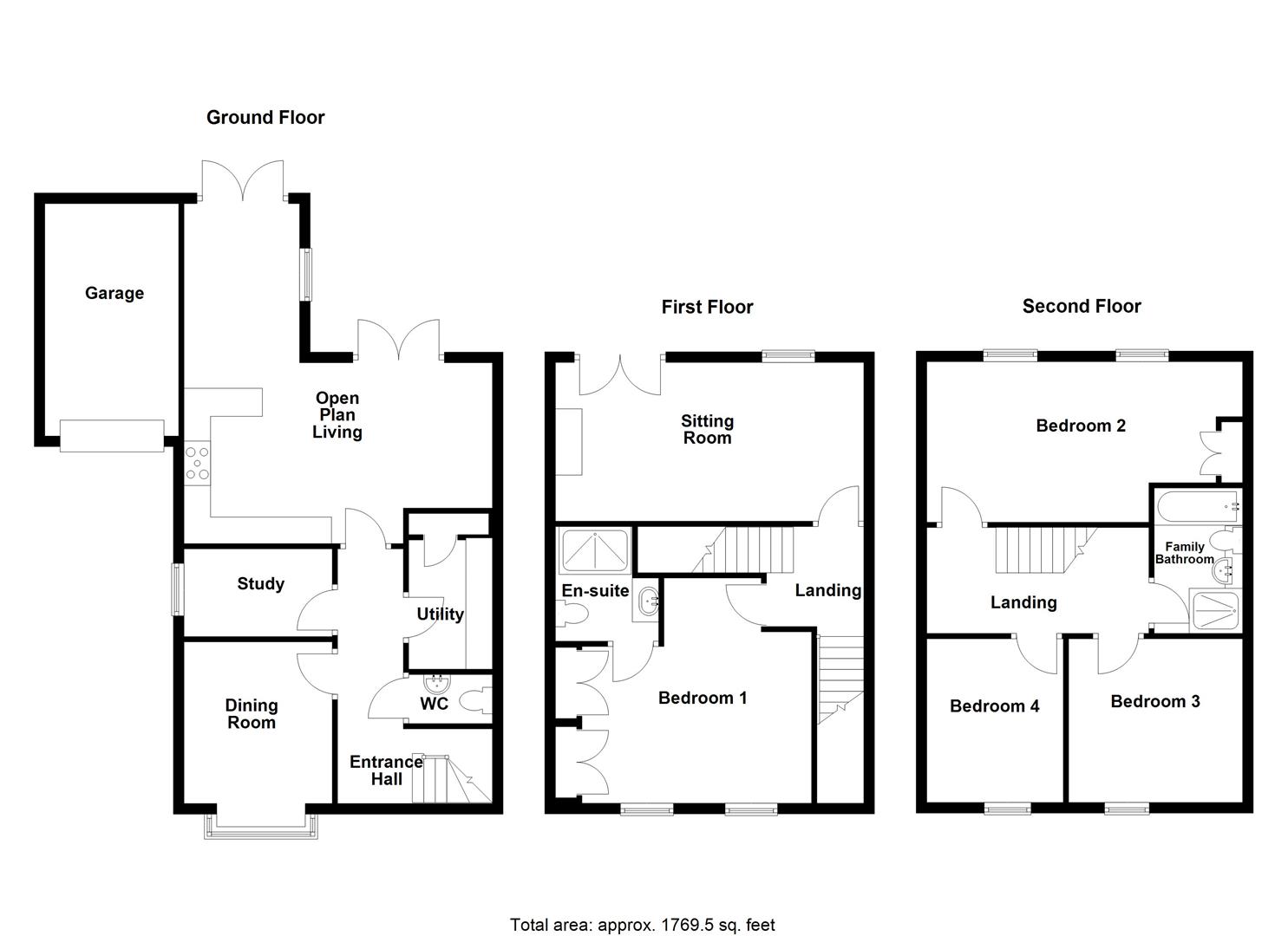
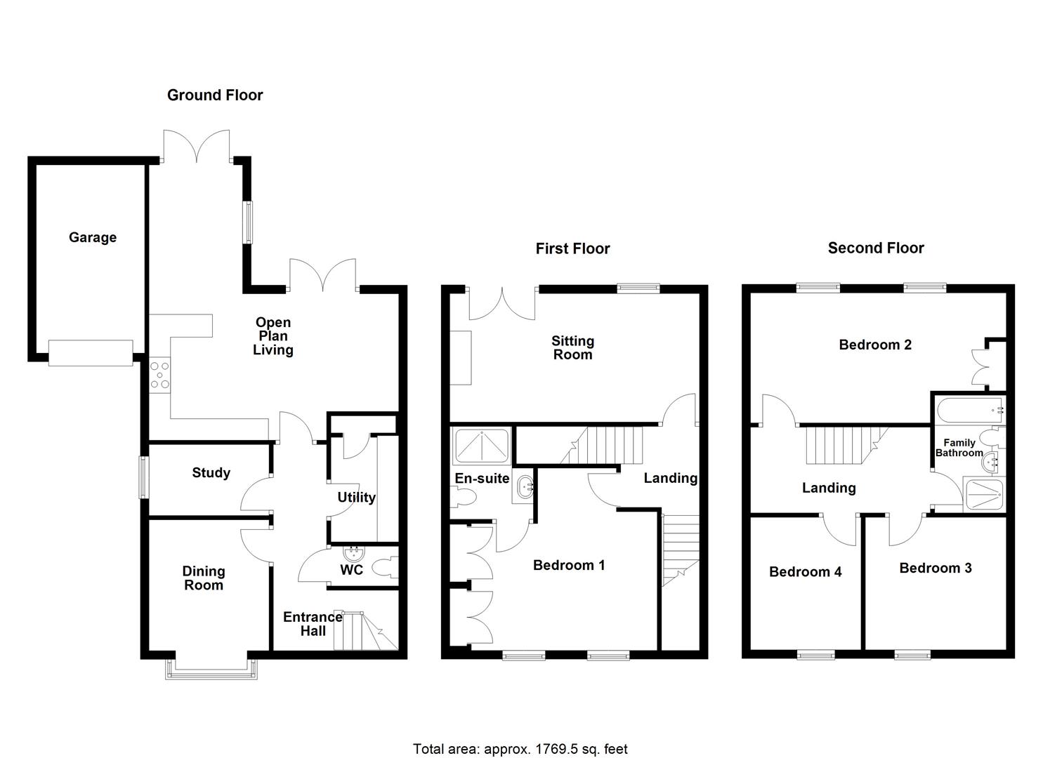
The accommodation which is presented throughout to an exacting standard provides well planned and well proportioned accommodation with rooms of pleasing dimensions. There is a good sized entrance hall with cloakroom, dining room, impressive open plan kitchen/dining and family room with glazed French doors opening onto and overlooking the rear garden. On the first floor there is a spacious sitting room with fireplace and glazed French doors with Juliet balcony overlooking the landscaped garden to the rear. Master bedroom with a range of built in wardrobes and a well appointed en suite shower room. On the second floor there are 3 further double bedrooms and a family bathroom with separate shower. The property also benefits from double glazing and gas-fired central heating.
The property is situated in a quiet residential enclave moments from the vibrant town centre with cafes, boutique shops, the Theatre Seven, Quarry Park and Dingle Gardens and also well placed within easy reach of excellent transport links including easy access to the M54 Motorway link to the West Midlands.
Read more
The accommodation which is presented throughout to an exacting standard provides well planned and well proportioned accommodation with rooms of pleasing dimensions. There is a good sized entrance hall with cloakroom, dining room, impressive open plan kitchen/dining and family room with glazed French doors opening onto and overlooking the rear garden. On the first floor there is a spacious sitting room with fireplace and glazed French doors with Juliet balcony overlooking the landscaped garden to the rear. Master bedroom with a range of built in wardrobes and a well appointed en suite shower room. On the second floor there are 3 further double bedrooms and a family bathroom with separate shower. The property also benefits from double glazing and gas-fired central heating.
The property is situated in a quiet residential enclave moments from the vibrant town centre with cafes, boutique shops, the Theatre Seven, Quarry Park and Dingle Gardens and also well placed within easy reach of excellent transport links including easy access to the M54 Motorway link to the West Midlands.
A superbly presented Town House situated in this favoured location in one of Shrewsbury's most sought after residential areas with accommodation arranged over 3 meticulously presented floors.
Inside The Property -
Entrance Hall -
Cloakroom -
Kitchen/Dining/Family Room - 7.09m x 5.79m (23'3" x 19'0") -
Utility -
Dining Room - 3.28m x 2.79m (10'9" x 9'2") -
Study - 1.78m x 2.79m (5'10" x 9'2") -
A STARCASE RISES TO THE FIRST FLOOR
Living Room - 3.58m x 5.79m (11'9" x 19'0") -
Bedroom 1 - 3.99m x 4.19m (13'1" x 13'9") -
En Suite -
STAIRCASE RISES TO THE SECOND FLOOR
Bedroom 2 - 3.58m x 5.79m (11'9" x 19'0") -
Bedroom 3 - 3.18m x 3.00m (10'5" x 9'10") -
Bedroom 4 - 3.18m x 2.79m (10'5" x 9'2") -
Family Bathroom -
Outside The Property -
TO THE REAR there is a private and attractively landscaped GARDEN laid to lawn with a paved patio and terrace, well stocked floral and shrubbery borders. Timber summerhouse and gated access to the side. Driveway with parking for 2 cars and serving the SINGLE GARAGE.
The GARDENS TO THE FRONT are attractively landscaped and well stocked and laid to lawn with further floral displays and a pathway serving the formal reception area.
Read less