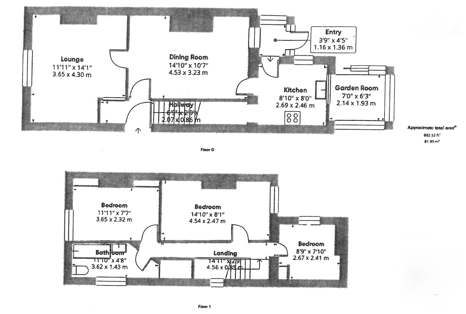
This deceptively spacious three bedroom semi-detached house offers versatile accommodation briefly comprising; reception hall, dining room, lounge, kitchen, rear porch, garden room, three bedrooms and bathroom. Off road parking. Enclosed easily maintained rear garden. The property benefits from gas fired central heating and double glazing.
The property is situated in a sought after residential locality, within walking distance of the Shrewsbury town centre, shopping facilities within Longden Coleham, on a frequent bus service to the town centre and easy access to the Shrewsbury by-pass with M54 link to the West Midlands.
Read more
This deceptively spacious three bedroom semi-detached house offers versatile accommodation briefly comprising; reception hall, dining room, lounge, kitchen, rear porch, garden room, three bedrooms and bathroom. Off road parking. Enclosed easily maintained rear garden. The property benefits from gas fired central heating and double glazing.
The property is situated in a sought after residential locality, within walking distance of the Shrewsbury town centre, shopping facilities within Longden Coleham, on a frequent bus service to the town centre and easy access to the Shrewsbury by-pass with M54 link to the West Midlands.
A deceptively spacious three bedroom semi-detached house offering versatile accommodation.
Inside The Property -
Entrance Hall -
Dining Room - 4.52m x 3.23m (14'10" x 10'7") - Window to the rear
Feature fire with surround and mantel
Built in store cupboards
Lounge - 3.63m x 4.29m (11'11" x 14'1") - Inset fire with surround and mantel
Window to the front
Kitchen - 2.69m x 2.44m (8'10" x 8'0") - Fitted with a range of matching wall and base units
Deep walk in pantry with shelving and access to Cellar
Door to:
Rear Porch - 1.14m x 1.35m (3'9" x 4'5") - Door to garden
Garden Room - 2.13m x 1.91m (7'0" x 6'3") - Accessed from the garden.
STAIRCASE rising from entrance hall to FIRST FLOOR LANDING
Bedroom 1 - 4.52m x 2.46m (14'10" x 8'1") -
Bedroom 2 - 3.63m x 2.31m (11'11" x 7'7") - Two built in double wardrobes
Bedroom 3 - 2.67m x 2.39m (8'9" x 7'10") -
Bathroom - Panelled bath with electric shower over
Wash hand basin, wc
Airing cupboard
Access to roof space
Outside The Property -
The property is approached over a paviour driveway providing parking with draft brick wall and hedge screen.
Enclosed REAR GARDEN laid to Astro turf and gravelled areas for ease of maintenance, paved patio providing ideal seating area with flower and shrub beds and borders. Garden store shed. The gardens are enclosed on all sides by mature fencing and hedging enjoying a high degree of privacy.
Read less