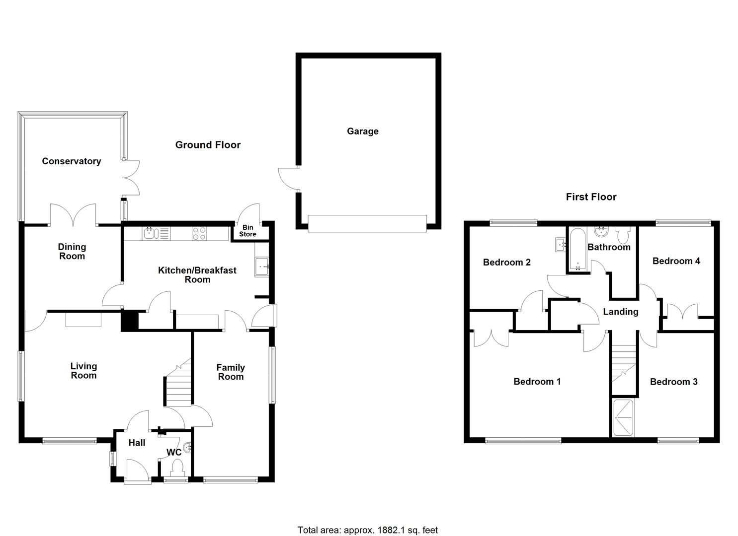
This extremely spacious four bedroom detached property provides well planned and well proportioned accommodation briefly comprising; entrance hall, cloakroom, family room, lounge, dining room, conservatory, breakfast kitchen, four bedrooms and bathroom. Extensive and private rear garden. Double garage and ample parking. The property also benefits from double glazing and gas fired central heating with a new boiler having been installed in December 2023.
The property is pleasantly situated in this popular and highly desirable residential area, well placed within reach of excellent local amenities, including popular schools, local shops, a frequent bus service to the town centre and is also within easy reach of the Shrewsbury by-pass with M54 motorway link to the West Midlands.
Read more
This extremely spacious four bedroom detached property provides well planned and well proportioned accommodation briefly comprising; entrance hall, cloakroom, family room, lounge, dining room, conservatory, breakfast kitchen, four bedrooms and bathroom. Extensive and private rear garden. Double garage and ample parking. The property also benefits from double glazing and gas fired central heating with a new boiler having been installed in December 2023.
The property is pleasantly situated in this popular and highly desirable residential area, well placed within reach of excellent local amenities, including popular schools, local shops, a frequent bus service to the town centre and is also within easy reach of the Shrewsbury by-pass with M54 motorway link to the West Midlands.
A spacious and well appointed, detached four bedroom family home, situated on a large plot in a pleasant end of cul-de-sac position.
Inside The Property -
Entrance Hall -
Cloakroom - Wash hand basin, wc
Family Room - 5.12m x 2.65m (16'10" x 8'8") - Windows to the front and side
Living Room - 4.80m x 4.39m (15'9" x 14'5") - Electric coal effect fire with surround and mantel
Windows to the front and side
Dining Room - 2.95m x 3.40m (9'8" x 11'2") - French doors opening to:
Conservatory - 3.91m x 3.81m (12'10" x 12'6") - Picture windows and double doors to the rear garden
Kitchen / Breafkast Room - 5.11m x 3.61m (16'9" x 11'10") - Fitted with a range of matching wall and base units
Inset oven and grill, and gas hob with extractor hood over
Door to Family Room
Door to the garden
STAIRCASE rising from entrance hall to FIRST FLOOR LANDING
Bedroom 1 - 4.80m x 3.71m (15'9" x 12'2") - Built in wardrobes
Bedroom 2 - 3.20m x 3.30m (10'6" x 10'10") - Sink unit
Built-in wardrobe
Bedroom 3 - 3.81m x 2.90m (12'6" x 9'6") - Shower cubicle
Bedroom 4 - 3.10m x 2.79m (10'2" x 9'2") - Built-in wardrobe
Bathroom - Panelled bath
Wash hand basin, wc
Outside The Property -
Double Garage - 5.99m x 4.80m (19'8" x 15'9") - Electric roller door.
The property is approached over a driveway, providing ample parking and access to the garage, flanked by lawn with well stocked shrubbery borders.
Extensive enclosed REAR GARDEN laid to lawn with paved patio providing ideal seating area, wide range of shrub beds and borders and mature hedging affording the garden privacy. Greenhouse. Garden shed. Bin Store.
Read less