An exceptional opportunity to acquire this unique and substantial barn conversion, featuring a detached coach house offering garaging and a self-contained annexe, paddock with stables extending to approximately 1.5 acres (with a further 8.5 acres of adjoining land available by separate negotiation). The property provides well planned and impressive proportioned accommodation throughout briefly comprising: reception hall, cloakroom, living room, kitchen/breakfast room, dining room/family room, bedroom one with en suite shower room, second bedroom with en suite shower room, two further bedrooms and family bathroom. Self Contained Annexe with an additional shower room. Mains water and electricity are connected, drainage is via a new latest specification septic tank, and the property benefits from LPG-fired central heating with underfloor heating to the ground floor. There are freestanding solar panels which currently generate electricity and an income of approx. ?6000 a year. There is easy access to an excellent range of schools including Packwood School, Adcote Girls School, Ruyton Primary School and Baschurch Senior School.
Set within the delightful rural location of Wykey, just a short distance from the village of Ruyton XI Towns, there are amenities nearby such as a Primary School, Village Shop, Public House and a Church. The property enjoys beautifully maintained grounds whilst providing unspoilt countryside views.
Read more
An exceptional opportunity to acquire this unique and substantial barn conversion, featuring a detached coach house offering garaging and a self-contained annexe, paddock with stables extending to approximately 1.5 acres (with a further 8.5 acres of adjoining land available by separate negotiation). The property provides well planned and impressive proportioned accommodation throughout briefly comprising: reception hall, cloakroom, living room, kitchen/breakfast room, dining room/family room, bedroom one with en suite shower room, second bedroom with en suite shower room, two further bedrooms and family bathroom. Self Contained Annexe with an additional shower room. Mains water and electricity are connected, drainage is via a new latest specification septic tank, and the property benefits from LPG-fired central heating with underfloor heating to the ground floor. There are freestanding solar panels which currently generate electricity and an income of approx. ?6000 a year. There is easy access to an excellent range of schools including Packwood School, Adcote Girls School, Ruyton Primary School and Baschurch Senior School.
Set within the delightful rural location of Wykey, just a short distance from the village of Ruyton XI Towns, there are amenities nearby such as a Primary School, Village Shop, Public House and a Church. The property enjoys beautifully maintained grounds whilst providing unspoilt countryside views.
A stunning four bedroom barn conversion, featuring a detached coach house, set on a stunning 1.5 acre plot, with an additional 8.5 acres available by separate negotiation.
Inside The Property -
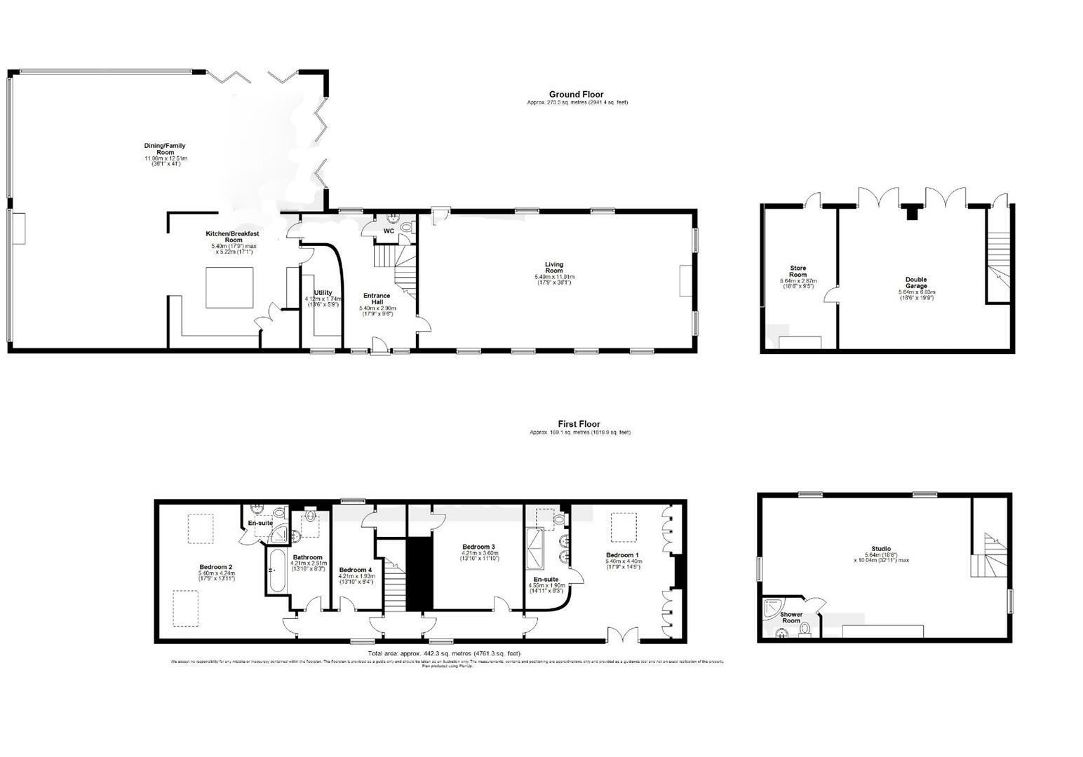
Reception Hall - 5.41m x 2.87m (17'9" x 9'5") -
Cloakroom - Wash hand basin, wc
Living Room - 5.41m x 10.69m (17'9" x 35'1") - Large room with Inglenook fireplace with Clearview wood burner
Windows to three sides
Door to garden
Kitchen / Breakfast Room - 5.41m x 5.21m (17'9" x 17'1") - Fitted with a range of Bespoke wall and base units with granite work surfaces
Central island unit with breakfast bar
Integrated appliances
Useful pantry
Opening to:
Dining / Family Room - 11.61m x 12.50m (38'1" x 41'0") - Superb open-plan room with Vaulted ceiling
Bi-folding doors to sun terrace and gardens
Utility Room - 4.11m x 1.75m (13'6" x 5'9") -
STAIRCASE rising from reception hall to FIRST FLOOR LANDING
Bedroom 1 - 5.41m x 4.39m (17'9" x 14'5") - Two sets of built in wardrobes
Velux roof light
Double opening window to Juliette balcony
En Suite Shower Room - Large shower cubicle
Twin wash hand basins, wc
Heated towel rail
Bedroom 2 - 5.41m x 4.24m (17'9" x 13'11") - Two Velux roof lights
En Suite Shower Room - Corner shower cubicle
Wash hand basin, wc
Bedroom 3 - 4.22m x 3.61m (13'10" x 11'10") - Built in store cupboard
Bedroom 4 - 4.22m x 1.93m (13'10" x 6'4") - Built in store cupboard
Bathroom - Inset panelled bath with shower attachment over, Wash hand basin, wc
Outside The Property -
Coach House /Double Garage - 5.64m x 5.99m (18'6" x 19'8") - Door to:
Adjoining Store Room - 5.64m x 2.87m (18'6" x 9'5") -
Studio / Annex - 5.64m x 10.03m (18'6" x 32'11") - Providing additional accommodation with a kitchenette and its own private entrance.
En Suite Shower Room - Corner shower cubicle
Wash hand basin, wc
The property is approached over a shared driveway to a double gated access leading to a large private courtyard providing ample parking with EV charging pod and access to the Garage/Coach House. Pathway to the front of the property with a wealth of mature shrub beds and borders.
There is a large paved patio area providing ideal entertaining space with a manicured circular lawned area and well stocked shrub beds and mature hedge. Adjoining field which has been carefully landscaped to provide a wild meadow garden with mature trees, shrub beds, pond and a stream, a wildlife haven with otters, Kingfisher, owls and much more. There is stabling to the far end of the garden ideal for equestrian purposes. The gardens and grounds/paddock extend to approximately 1.5 acres and offer a true escape from the busy world.
There is a further 8.5 acres of adjoining land available by separate negotiation.
Read less