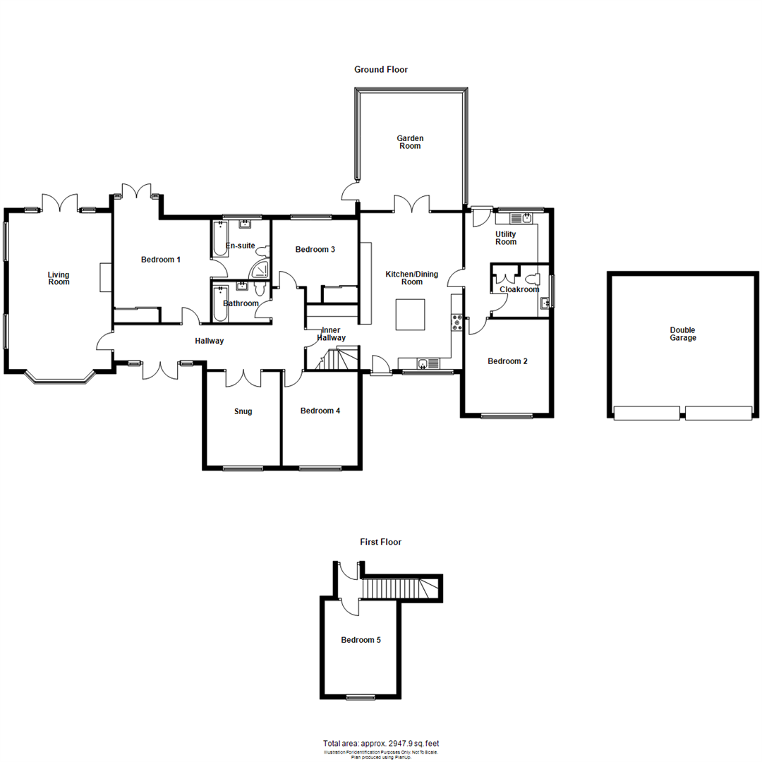
A superior, well appointed, five bedroom detached bungalow residence, set on an extensive plot with spacious accommodation briefly comprising; entrance hall, living room with Inglenook fireplace, bay window and double doors to rear garden, beautiful open plan kitchen/dining room with central island unit and integrated appliances, utility, cloakroom, garden room enjoying views over the garden, snug, master bedroom with en suite bath and shower room, three further bedrooms and bathroom to the ground floor. First floor 5th bedroom. Gated access leading to pressed concrete driveway providing ample parking and access to the double garage. Beautifully landscaped gardens.
The property is located in the desirable village of Baschurch, approximately 8 miles north west of Shrewsbury. There are a wide range of local amenities including, Doctors' surgery, a Spar supermarket/post office, public houses and renowned primary and secondary schools, making it practical for families and day to day living. Community facilities include a Church, village hall and tennis club add to its strong community feel and active lifestyle living.
Read more
A superior, well appointed, five bedroom detached bungalow residence, set on an extensive plot with spacious accommodation briefly comprising; entrance hall, living room with Inglenook fireplace, bay window and double doors to rear garden, beautiful open plan kitchen/dining room with central island unit and integrated appliances, utility, cloakroom, garden room enjoying views over the garden, snug, master bedroom with en suite bath and shower room, three further bedrooms and bathroom to the ground floor. First floor 5th bedroom. Gated access leading to pressed concrete driveway providing ample parking and access to the double garage. Beautifully landscaped gardens.
The property is located in the desirable village of Baschurch, approximately 8 miles north west of Shrewsbury. There are a wide range of local amenities including, Doctors' surgery, a Spar supermarket/post office, public houses and renowned primary and secondary schools, making it practical for families and day to day living. Community facilities include a Church, village hall and tennis club add to its strong community feel and active lifestyle living.
Entrance Hall -
Living Room - 6.87m x 4.51m (22'6" x 14'10") - Fantastic through room with bay window to the front and French doors to the rear garden
Inglenook fireplace with inset log burner
Snug - 4.12m x 3.22m (13'6" x 10'7") -
Kitchen / Dining Room - 6.87m x 4.49m (22'6" x 14'9") - Fitted with a range of matching modern units with integrated appliances
Central island unit
Garden Room - 5.16m x 4.50m (16'11" x 14'9") -
Utility Room - 4.57m x 2.00m (15'0" x 6'7") -
Cloakroom - Wash hand basin, wc
Bedroom 2 - 4.12m x 3.70m (13'6" x 12'2") -
Bedroom 1 - 5.41m x4.22m (17'9" x13'10") - French doors opening onto rear garden
En Suite - Panelled bath and corner shower cubicle
Wash hand basin, wc
Bedroom 3 - 3.64m x 3.75m (11'11" x 12'4") - Built in wardrobes
Bedroom 4 - 4.12m x 3.30m (13'6" x 10'10") -
Bathroom - Panelled bath with shower over
Wash hand basin, wc
STAIRCASE rising from the Inner Hallway to:
Bedroom 5 - 4.12m x 3.16m (13'6" x 10'4") -
Gardens And Grounds -
Double Garage -
The property is approached through five bar wooden entrance gates leading over a spacious pressed concrete driveway providing ample parking and access to the double garage. Front garden laid to lawn with mature hedging and trees.
Pathway to the side of the property leads to the well stocked and immaculately maintained rear garden, laid mainly to lawn, with a wide selection of specimen trees and shrubs, paved patio area with wooden Pergola providing an ideal seating/entertaining space.
Read less