The property has been newly refurbished to provide well planned and well proportioned accommodation throughout with rooms of pleasing dimensions and briefly comprises: entrance hall, cloakroom, lounge, open plan kitchen/dining room, three bedrooms and bathroom. Driveway parking and low maintenance gardens to the front and rear. The property also benefits from gas fired central heating and double glazing (both recently installed).
The property is placed in a popular and convenient location within reach of local amenities including shops and schools, bus service to the town centre, and within easy reach of the Shrewsbury bypass and the M54 motorway link to the West Midlands.
Read more
The property has been newly refurbished to provide well planned and well proportioned accommodation throughout with rooms of pleasing dimensions and briefly comprises: entrance hall, cloakroom, lounge, open plan kitchen/dining room, three bedrooms and bathroom. Driveway parking and low maintenance gardens to the front and rear. The property also benefits from gas fired central heating and double glazing (both recently installed).
The property is placed in a popular and convenient location within reach of local amenities including shops and schools, bus service to the town centre, and within easy reach of the Shrewsbury bypass and the M54 motorway link to the West Midlands.
A recently refurbished and much improved three bedroom semi-detached house, situated in a popular and convenient location with a pleasant outlook to the front overlooking a public amenity space.
Inside The Property -
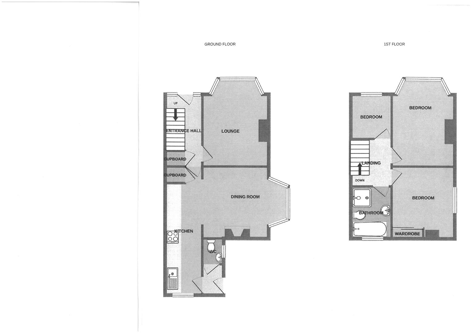
Entrance Hall -
Cloakroom - Refitted with a modern, white wash hand basin and low flush wc
Lounge - 4.1 x 3.2 (13'5" x 10'5") - Walk in bay window to the front
Feature electric fire
Kitchen / Dining Room - 5.5 x 3.5 (18'0" x 11'5") - Refitted with a range of attractive high-gloss units with integrated appliances.
From the entrance hall, STAIRCASE rises to FIRST FLOOR LANDING
Bedroom 1 - 4.0 x 3.0 (13'1" x 9'10") - Bay window to the front
Bedroom 2 - 3.5 x 3.1 (11'5" x 10'2") - Window to the side
Fitted wardrobe
Bedroom 3 - 2.1 x 2.0 (6'10" x 6'6") - Window to the rear
Bathroom - Refitted with modern white suite
Panelled bath
Walk-in shower unit
Inset wash hand basin with under cupboard, and low flush wc
Outside The Property -
To the front, the property occupies an enviable corner plot, with a wide frontage with pedestrian access and driveway providing parking.
The garden is laid predominantly to lawn with an ornamental arch and gateway to the rear where there is a low maintenance garden with raised beds and useful storage shed.
Read less