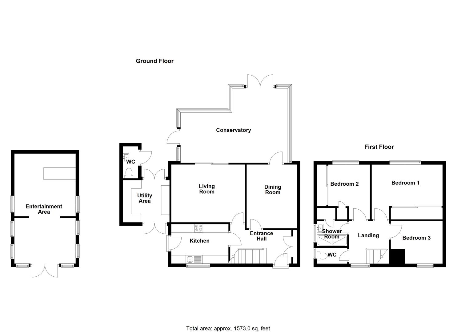
This three bedroom semi-detached house is immaculately presented throughout has been much improved to provide spacious accommodation briefly comprising; entrance hall, kitchen, dining room, living room, L shaped conservatory, rear lobby/utility, three bedrooms and shower room with separate wc. Landscaped rear garden with large summerhouse/entertaining bar area. Driveway providing parking. The property benefits from gas fired central heating and double glazing.
The property is situated on this popular and established residential development, well placed within easy reach of excellent local amenities including shops, schools and on a frequent bus service to the nearby town centre.
Read more
This three bedroom semi-detached house is immaculately presented throughout has been much improved to provide spacious accommodation briefly comprising; entrance hall, kitchen, dining room, living room, L shaped conservatory, rear lobby/utility, three bedrooms and shower room with separate wc. Landscaped rear garden with large summerhouse/entertaining bar area. Driveway providing parking. The property benefits from gas fired central heating and double glazing.
The property is situated on this popular and established residential development, well placed within easy reach of excellent local amenities including shops, schools and on a frequent bus service to the nearby town centre.
An immaculately presented, much improved, three bedroom semi-detached family house.
Inside The Property -
Entrance Hall - Patterned tiled floor
Dining Room - 3.81m x 2.99m (12'6" x 9'10") - Built in store cupboards
LVT flooring
Door to Conservatory
Living Room - 3.45m x 4.39m (11'4" x 14'5") - LVT flooring
Inset log burner
Sliding doors to:
Spacious Conservatory - Spacious L shaped room
LVT flooring
Two doors to rear garden
Kitchen - 2.36m x 3.41m (7'9" x 11'2") - Fitted with a range of matching wall and base units with Quartz worktop with undermount sink
Integrated dishwasher
Built in wall microwave
Inset oven and hob with extractor hood over
Warming drawer
Induction hob
Flooring Quartz
Door to outside
Side Lobby / Utility - 2.52m x 2.78m (8'3" x 9'1") - Fitted with base units
Doors to front and rear
STAIRCASE rising from entrance hall to FIRST FLOOR LANDING
Bedroom 1 - 3.28m x 4.23m (10'9" x 13'11") - Built in wardrobe with sliding mirror fronted doors
Bedroom 2 - 3.28m x 3.15m (10'9" x 10'4") - Built in wardrobe with sliding mirror fronted doors
Bedroom 3 - 2.54m x 3.09m (8'4" x 10'2") -
Shower Room - Newly renovated with walk in shower
Wash hand basin
Separate Wc -
Outside The Property -
The property is divided from the road by dwarf brick wall with wrought iron gate over driveway providing parking, flanked by front garden laid to lawn. Electric car charging point.
Beautifully presented REAR GARDEN laid mainly to lawn with newly planted trees, large paved patio area providing idea seating/entertaining space with Pergola with retractable cover. Pathway to superb SUMMERHOUSE / GARDEN ROOM fitted with a bar area and inset cupboards and fridge units, providing ideal covered entertaining area. Two large store sheds.
Newly renovated outside WC with wash hand basin.
Read less